发烧论坛

注册

 

返回列表 «678910111213» / 21
发新话题 回复该主题

〖实战〗客厅音响——喇叭长边摆位 [复制链接]

查看: 162586|回复: 200
91#

回复:〖实战〗客厅音响——喇叭长边摆位

请问“有效的音场”中“有效的”含义。谢谢!
音响的乐趣,在于演奏。
欢迎到访我的博客http://adam.lee.vip.blog.163.com/
累的时候听着音乐睡一会,闲的时候搞搞音响乐在其中。
TOP
92#

回复:〖实战〗客厅音响——喇叭长边摆位

最大限度地还原唱片里的元素,利用合理有效的吸收和扩散办法处理空间,在音箱与后墙左墙至右墙之间,形成一个音场来表现音乐。
TOP
93#

回复: 〖实战〗客厅音响——喇叭长边摆位

原帖由 贝多芬蒋 于 2008-1-9 20:00:00 发表
yudeanwu兄说的挺好!
我认为如有一个试听室的话,通过合理有效的空间处理和摆位,就能够创造出一个有高.宽.深的音场。结像清晰.声音透明.情感深情.层次分明,想得到的一个不少,未曾想到的更是悦耳不绝。
在不是不......


经我多年的實踐,觀察,長边抎位,音场只能集中於左右喇叭之中位附近,如欲声音去到喇叭之左右方,便要靠左右牆边之反射声了.
但有例外,我試过MBL之121E,長边摆时,声場也能去到左右两边,而声音比短边自然,但密度又不及短边.所以長棍短棍,还要看喇叭之特牲與摆位角度,但最后听音者之个人喜惡與听音條件也是主要關件哩!
TOP
94#

回复:〖实战〗客厅音响——喇叭长边摆位

在一个比较理想的家居hifi两声道听音室里,只要经过合理有效的空间处理(长方形短边放),一般的hifi器材也能够很好的建立起一个,可以比较好的还原交响乐极具强弱对比的声场,来表现出很具现场魅力的音乐。
发烧应该要建立一个比较完好的音场,才能够比较好的还原现场,才更好听且越听越想听。这大概也是今后发展的趋势,由此我们才能有一个比较可能一致的听感和共识。
TOP
95#

回复: 〖实战〗客厅音响——喇叭长边摆位

该用户帖子内容已被屏蔽
TOP
96#

回复: 〖实战〗客厅音响——喇叭长边摆位

该用户帖子内容已被屏蔽
TOP
97#

回复:〖实战〗客厅音响——喇叭长边摆位

试听室建在客厅很普遍,但也要设法调出一个起码比较好的音场来,我们要求有一侧面必须要靠墙。为了营造一个象样的音场,另一边可以尝试在3.5米左右处,竖立一块1x1.8米的厚玻璃当另一侧墙用。这样即能出好声又不影响采光,无墙的那一个音箱听音时,用一块板挡着不让声压往外跑,这样音场更深声音更纯静,密度.结像.层次等等均能比较好的显现出来。
两侧后“墙”须各装一块二次余数扩散板,有了它才能还原更真实的声音。以上做法我试过,真的很有效大家不妨试试。
TOP
98#

回复:〖实战〗客厅音响——喇叭长边摆位

长边摆法最大的问题是音箱离后墙近,反射声过强.如果左右不对称的话还不易获得准确的宽度定位.其次音箱与皇帝位距离太近声像不易聚焦.每个音箱都有最适合聆听距离,太近会有压迫感,即使通过不同的内拗角度解决了又会带来新的问题..........长边摆放遇到的问题更多更难克服.:'(
TOP
99#

回复: 〖实战〗客厅音响——喇叭长边摆位

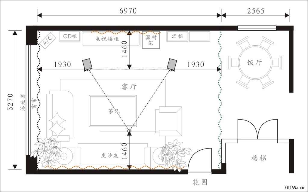
下图是小弟的实际摆位:(见图)
1、拟增加右侧(绿线)厚窗帘;
2、拟增加前后吸音或扩散物。

请坛子里的高手支招。谢谢!
客厅摆位.jpg (, 下载次数:138)

jpg(2008/1/11 16:19:58 上传)

客厅摆位.jpg

音响的乐趣,在于演奏。
欢迎到访我的博客http://adam.lee.vip.blog.163.com/
累的时候听着音乐睡一会,闲的时候搞搞音响乐在其中。
TOP
100#

回复: 〖实战〗客厅音响——喇叭长边摆位

原帖由 东莞肥仔 于 2008-1-8 14:41:00 发表
请教,长边摆位最大的弊端——残响过长的问题,有没有好的解救办法。


如果残响真是过长,短边摆位就没有这个问题?处理残响过长没有什么新办法!
TOP
发新话题 回复该主题