发烧论坛

注册

 

发新话题 回复该主题

请教下高手,家庭影院用Lexicon莱斯康系统好不好?音箱最好的牌... [复制链接]

查看: 9255|回复: 36
21#

回复:请教下高手,怎么样玩家庭影院呢!?

强贴,迷糊\SMERT高手指教,难得,难得.
一个建议,如果真的有投入,除了器材,可以请声学设计专家帮忙计算一下,设计一下吸声板和反射板等,一次和楼下建筑声学研究所的朋友聊天后,才觉得,一开始就按照一定的混响时间计算\按照声学的本本配合适的大小的喇叭,可以剩很多事情.
TOP
22#

回复: 请教下高手,怎么样玩家庭影院呢!?

去力高看看!
TOP
23#

回复: 请教下高手,怎么样玩家庭影院呢!?

原帖由 迷糊 于 2008-4-25 16:59:00 发表
[quote] 原帖由 tianyinhifi 于 2008-4-25 16:31:00 发表
[quote] 原帖由 SMERT 于 2008-4-25 16:25:00 发表
环绕也是ATC SCM100,不用W7m如何能推好呀;P

如果中置和环绕声用小一些的箱子,弄台......


同意迷糊所说,100虽然在表达人声音还原有相当优势,但电影的冲击力,尤其在大场面的爆炸比JBL还是差距不小,速度瞬变太慢!做影院还是JBL的号角好很多!电影和音乐毕竟是两码事,它不要求声音的细腻,要求对各种音响(这里不是指设备,指各种声音)充分的还原!
最后编辑一点 最后编辑于 2008-04-26 11:02:01
TOP
24#

回复:请教下高手,怎么样玩家庭影院呢!?

感谢大家,感谢迷糊一路的指引,现在方向明确很多.5.1去广州找几家代理商试听一下.还有个问题解码器用什么牌子为善?
coke QQ群: 54525010
TOP
25#

回复: 请教下高手,怎么样玩家庭影院呢!?

原帖由 一点 于 2008-4-26 10:58:00 发表
[quote] 原帖由 迷糊 于 2008-4-25 16:59:00 发表
[quote] 原帖由 tianyinhifi 于 2008-4-25 16:31:00 发表
[quote] 原帖由 SMERT 于 2008-4-25 16:25:00 发表
环绕也是ATC SCM100,不用W7m......

其实100我也没有听过呢,只是有个朋友用着,说效果很好.说得好象没有人可以打赢它似的,呵呵~
coke QQ群: 54525010
TOP
26#

回复: 请教下高手,怎么样玩家庭影院呢!?

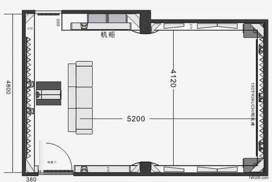
是一个做影院的给的方案,大家建议一下
一楼音响室.jpg (, 下载次数:42)

jpg(2008/4/28 9:01:12 上传)

一楼音响室.jpg

材料.jpg (, 下载次数:44)

jpg(2008/4/28 9:09:02 上传)

材料.jpg

最后编辑tianyinhifi 最后编辑于 2008-04-28 09:09:02
coke QQ群: 54525010
TOP
27#

回复:请教下高手,家庭影院用Lexicon莱斯康系统好不好?音箱最好的牌子是什么?

请前辈们赐教了!给点意见,小弟刚入门,对品牌认识少
coke QQ群: 54525010
TOP
28#

回复: 请教下高手,家庭影院用Lexicon莱斯康系统好不好?音箱最好的牌子是什么?只求最好

呵呵!没有最好。
大环境上JBL,小环境上M&K S150 PK 主动版+5100炮
莱斯康配两家都很出色。
AV房装修可问问EPOS。

原帖由 tianyinhifi 于 2008-4-24 20:32:00 发表
现在音响室在筹备中,打算弄一套发烧的家庭影院,请问下大家有什么建议?我打算音响用一样的牌子一样的型号,每个声道用1个后级来推!大家有什么好建议没有多多指教啊!:|
TOP
29#

回复:请教下高手,家庭影院用Lexicon莱斯康系统好不好?音箱最好的牌子是什么?只求最好

XXXXXXXXXXXXXXXXXXXXXXXXXXXXXXXXXXXXXXXXXXXXXXXXXXXXXXXX

以上高人所兄見略同!但有些忽略了中置喇叭的重要性!

因為看科幻大片时70%的对白和始發声音是由中置喇叭表术D!

講究的玩法走是中置喇叭也必須用号角.....撲面而来的冲击波才是正道也!

附图是小号闭门造车之室,正探讨AV高 C/P ration 的玩法!

还有一点是....Sub Woofew 最好用二个!

XXXXXXXXXXXXXXXXXXXXXXXXXXXXXXXXXXXXXXXXXXXXXXXXXXXXXXXX



最后编辑csdam 最后编辑于 2008-05-08 03:04:14
http://www.6c33.com
Indeed Hi Fi Lab东莞市黄江镇康湖商场2楼23号 0769-83608200  13113282884  E-Mail csdam@126.com.
TOP
30#

回复:请教下高手,家庭影院用Lexicon莱斯康系统好不好?音箱最好的牌子是什么?只求最好

JBL就很好了吗?好象档次底了点吧?我听过莱斯康+ATC100系列有源的效果真的不错.很微妙的声音都表现出来了,不过在速度上感觉还是不够快 中音就真的很好,可以选择它的中置,全套ATC100怕摆上我们那就没有地方坐了
最后编辑tianyinhifi 最后编辑于 2008-05-08 09:31:38
coke QQ群: 54525010
TOP
发新话题 回复该主题