发烧论坛

注册

 

发新话题 回复该主题

听音室方案出来-急需各路大仙指点修改 [复制链接]

查看: 8791|回复: 33
1#
正在装修房子,初步听音室方案出来,等大家再提提意见,大概5天后开工
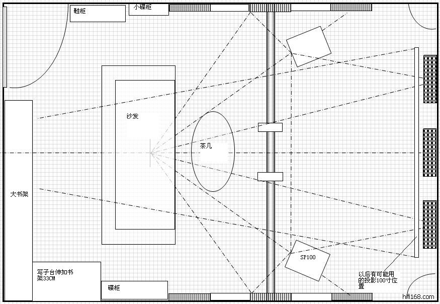
先简单图形介绍如下:
平面图:房子尺寸 540 X 370 X 245,后墙三块二次余数扩散板,80X20X170 设11步,左墙三条通顶50CM宽的微孔板,内塞岩棉,厚6CM.间隔50CM设简易木扩散条,一高一低.  门口设挂衣架,下设鞋柜.
        右侧墙和左侧墙对称,只是沙发侧面设碟柜,后墙整个大书架,厚度33CM,右后墙角设一写字台,可以鼓捣点东西方便操作.

               平面图
地面为强化木地板局部加地毯.
顶上横向有一消防管道,将其包起来美化一下,前房角设30CM半径的弧度,内填岩面.顶上暂时没做方案,大家一并考虑. 

                 左侧面图



正前墙,后有小窗户(半地下室)
门只有想内开的铁防盗门已安好,计划给门面上加些软包.
以上图形严格按比例画的,包括喇叭 茶几 沙发都是实际尺寸比例.俩侧墙的微孔板和简易扩散板下沿图中滑的离地20CM.实际做时计划作到踢角线顶......
谢谢大家提出宝贵意见.
分享 转发
TOP
2#

回复: 听音室方案出来-急需各路大仙指点修改

平面土标注如下,其中尺寸可看网格,每格为5CM
TOP
3#

回复:听音室方案出来-急需各路大仙指点修改

坐等DX支招……
最愛奚秀蘭並因奚秀蘭而發燒
我發表的以奚秀蘭爲主題的重要帖子的鏈結:http://post.baidu.com/f?kw=%DE%C9%D0%E3%C0%BC
TOP
4#

回复:听音室方案出来-急需各路大仙指点修改

曾有一大侠声学毕业,说把微孔板左右墙位置错开,不要对称,且作成下端4CM,顶端8CM的斜面.
斜面可以,但不对称怕对立体结像不利......
TOP
5#

回复: 听音室方案出来-急需各路大仙指点修改

原帖由 难忘的战斗 于 2008-6-15 1:56:00 发表
正在装修房子,初步听音室方案出来,等大家再提提意见,大概5天后开工
先简单图形介绍如下:
平面图:房子尺寸 540 X 370 X 245,后墙三块二次余数扩散板......


为装修而装修,看似很专业的听音室。其实房间尺寸并没有很重大的问题,这个时候做一些想当然尔的吸扩大多数时候都会得到反效果,尤其往后如果要处理掉先天埋下的弊病,反而九牛二虎,很有可能有要面临拆装修的困境,建议在房间尺寸没有重大问题的时候,不要预作声学上的多余扩吸动作。
现阶段要注意的重点应该应该放在电源专线的处理,使用的方便性上,及地板方面的处理,这些工作才是装修听音室先期的重要工作,等一切器材就位以后调教,在这种房间尺寸下很有可能根本不必在吸扩的声学处理上伤脑筋。
TOP
6#

回复:听音室方案出来-急需各路大仙指点修改

抽湿机,排风机位置???
TOP
7#

回复:听音室方案出来-急需各路大仙指点修改

房型接近黄金比例啊,口水 ,想恶声都难;P
男人要多听音乐,才不会胡思乱想。
TOP
8#

回复:听音室方案出来-急需各路大仙指点修改

谢谢几位的宝贵意见!
电源10平方的专线已进入,电箱位置在门的上方,计划10平方从电箱右左墙顶继续往前到前墙下,38.5那里定的墙插已到,其他供电从右墙顶往前排,总之声学效果和美观也是要兼顾的,因为视觉效果对听者对音乐的感觉确实是有影响的.换气放在前小窗上,然后在窗前在设置一个隔音的东西,用的时侯能打开的,除湿机和生活插座都设在右墙下,本地下室可以说基本没潮的感觉,买下观察了2年半了,与西安本身干燥而且小区地理位置高有关系.
请继续提出建议!
TOP
9#

回复:听音室方案出来-急需各路大仙指点修改

现在是工程施工的好时节,战斗兄有闲心搞装修不用驻工地了
TOP
10#

回复:听音室方案出来-急需各路大仙指点修改

只搞一组10平方太专制了吧,要不要考虑拉多条4平方的来供音源.
TOP
发新话题 回复该主题