发烧论坛

注册

 

发新话题 回复该主题

房间摆位的问题,大家发表下意见 [复制链接]

查看: 5317|回复: 25
1#
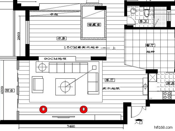
箱子放在客厅,没办法只能放长边,不过客厅跟书房之间没砌墙,只做了个地柜,所以之间是通的.
现在有两种摆法,大家看看是A好还是B好,其实就是是箱子后面空些好还是作为后面空些好
大家指点下啦................
1.jpg (, 下载次数:479)

jpg(2008/12/15 16:12:50 上传)

1.jpg

2.jpg (, 下载次数:467)

jpg(2008/12/15 16:12:50 上传)

2.jpg

最后编辑outlooking 最后编辑于 2008-12-15 16:12:50
分享 转发
TOP
2#

B 好一点点
在乐声中沉醉,  与音符一起飞翔 !
  ------《hifi中国》Q群:67757534
        ——《hifi佛山》Q群:62950588
TOP
3#

人好少啊........
还是我自己动手实践证明一切
原先是A的摆位,声音不凝聚,散,没可听性.晚上费半天劲转了个向,天地的差别...................,摆位居然这么重要!!!
按B的摆位之后声场,定位,饱满度才正确显现出来.
希望对有的朋友有所启示
TOP
4#

不用听就知道B好
最后编辑fengni70 最后编辑于 2008-12-15 23:47:55
TOP
5#

你的客厅与我家里差不多的结构布局,我是采用B方法,效果满意.
事能知足心常惬  人到无求品自高
TOP
6#

A会不会耐听点呢?
TOP
7#

咱也是这种结构。。请大家说下左右侧墙如何处理。。。没法处理的话B摆位应注意什么问题。。
TOP
8#

原帖由 szlghyj 于 2008-12-16 9:53:00 发表
A会不会耐听点呢?

A的摆位可能在处理好后墙的吸声和扩散也能出效果,不过貌似难度很大,比如能处理到让后墙消失的效果(专业消音室处理法???)
B的话相对容易搞,但是缺点也明显,就是纵深感差点
总之我觉得房间的反射声对听音影响非常大,要想尽办法吸声,扩散,无论是前后左右还是地板天花
TOP
9#

估计B好,不过建议楼主最好自己实验一下。
Creek EVO + Melody EL34 + Spendor  S3/5R
TOP
10#

B好,因为音箱后面是实墙,建议在两边的第一反射点各加一块1.2M宽×1.5M高的扩散板,听音位后面落一幅厚布帘。
大文豪欧阳修说:乐之道深矣…听于善,亦必得于心而会于意,不可得而言也。
金嗓子DP-500CD机/C-2800前级/A-50V后级/威卓CR-one音箱
TOP
发新话题 回复该主题