发烧论坛

注册

 

发新话题 回复该主题

请求松香味老师和论坛上的高手帮忙。。。。。。 [复制链接]

查看: 5470|回复: 16
1#
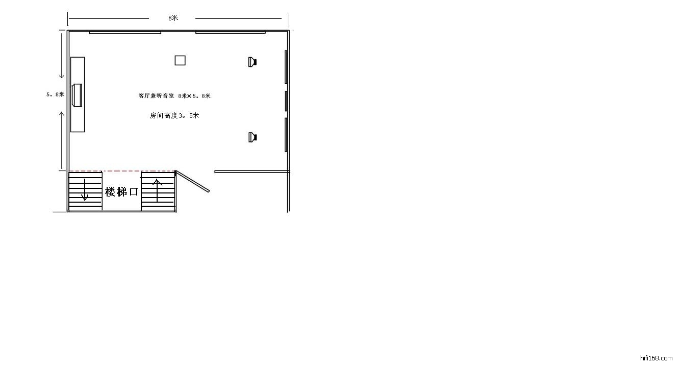
请求松香味老师和论坛上的高手帮忙看一下这间房子音箱该如何摆位,图示:
听音室.jpg (, 下载次数:7)

jpg(2009/5/18 10:20:56 上传)

听音室.jpg

分享 转发
TOP
2#

就这样摆!
TOP
3#

现在箱子摆位如图
听音室.jpg (, 下载次数:5)

jpg(2009/5/18 17:06:47 上传)

听音室.jpg

TOP
4#

原帖由 冬东1 于 2009-5-18 17:07:00 发表
现在箱子摆位如图

这个摆位方向应该比较好吧,关键家人看电视有没有影响?

环境够大够高,羡慕!天花板搞搞低频吸收处理,基本上就可以获得较好效果了。
最后编辑松香味 最后编辑于 2009-05-18 21:10:16
对于音响器材来说:绝对“理想的、忠实地还原”是没有的,也是做不到的;我们只是在朝着“音响器材各自应该具备的基本性能”方面尽量努力,使其各尽其责而已。目的就是尽可能地做到“理想的、忠实地还原”。
TOP
5#

3楼图摆位可以了
CLK发烧信号线!
淘宝: http://shop35466467.taobao.com
TOP
6#

原帖由 松香味 于 2009-5-18 20:03:00 发表
原帖由 冬东1 于 2009-5-18 17:07:00 发表
现在箱子摆位如图

这个摆位方向应该比较好吧,关键家人看电视有没有影响?

环境够大够高,羡慕!天花板搞搞低频吸收处理,基本上就可以获得较好效果了。

谢谢松香味老师在百忙中指点和解答,天花板会慢慢想办法处理的(先做做老婆的思想工作。。。。。。通了就上!哈哈!)。
TOP
7#

原帖由 clk 于 2009-5-18 20:08:00 发表
3楼图摆位可以了

您老这么一说我就有信心了,谢谢!
TOP
8#

原帖由 冬东1 于 2009-5-18 23:18:00 发表
原帖由 松香味 于 2009-5-18 20:03:00 发表
原帖由 冬东1 于 2009-5-18 17:07:00 发表
现在箱子摆位如图

这个摆位方向应该比较好吧,关键家人看电视有没有影响?

环境够大够高,羡慕!天花板搞搞低频吸收处理,基本上就可以获得较好效果了。

谢谢松香味老师在

关于摆位这里有些建议可以参考http://bbs.hifi168.com/showtopic-143608-20.aspx
对于音响器材来说:绝对“理想的、忠实地还原”是没有的,也是做不到的;我们只是在朝着“音响器材各自应该具备的基本性能”方面尽量努力,使其各尽其责而已。目的就是尽可能地做到“理想的、忠实地还原”。
TOP
9#

很羡慕, 我觉得您的摆位也不错了。后墙做点散射,听位背后搞个挂毯吸音会更好。
玩hifi的乐趣在于—自己快乐!
能和朋友一起分享更是快乐!
TOP
10#

原帖由 冬东1 于 2009-5-18 23:20:00 发表
原帖由 clk 于 2009-5-18 20:08:00 发表
3楼图摆位可以了

您老这么一说我就有信心了,谢谢!

信心源自你自己的实际听感及可操作的调整,空间很好了,自己动脑动手最好,别人都没听过,说了也不算数。
TOP
发新话题 回复该主题