帐号
注册
密码
登录
关闭
安全选项
找回密码
记住我
我的中心
登录或注册新用户,开通自己的个人中心
HIFI168首页
快速搜索
帖子标题
作者
版块
发烧论坛
»
发烧专区
»
HiFi乐趣
»
请教坛子上朋友
发烧专区
HiFi乐趣
音乐唱片
器材用家专区
在线试听
交易论坛
硬件交易
软件交易
返回列表
查看:
1373
|
回复:
3
请教坛子上朋友
[复制链接]
查看:
1373
|
回复:
3
发送短消息
UID
72490
精华
0
查看公共资料
搜索主题
搜索帖子
songeagle
songeagle
组别
论坛博士后
生日
帖子
778
积分
788
性别
注册时间
2002-01-16
songeagle
论坛博士后
1
#
字体大小:
t
T
发表于
2010-03-23 10:56
|
只看楼主
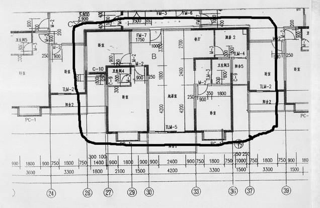
这是新房的平面图,音响只能放客厅,怎么摆放更好呢?长边还是短边?以好声音和生活方便的折衷考虑,因为要装修布音响专线,和投影的布线,请教专家了,多谢
songeagle 最后编辑于 2010-03-23 10:59:10
分享
转发
只求自在
TOP
发送短消息
UID
72490
精华
0
查看公共资料
搜索主题
搜索帖子
songeagle
songeagle
组别
论坛博士后
生日
帖子
778
积分
788
性别
注册时间
2002-01-16
songeagle
论坛博士后
2
#
字体大小:
t
T
发表于
2010-03-23 11:00
|
只看楼主
回复 1# songeagle 的帖子
图上不去?
只求自在
TOP
发送短消息
UID
72490
精华
0
查看公共资料
搜索主题
搜索帖子
songeagle
songeagle
组别
论坛博士后
生日
帖子
778
积分
788
性别
注册时间
2002-01-16
songeagle
论坛博士后
3
#
字体大小:
t
T
发表于
2010-03-23 11:05
|
只看楼主
原帖由
songeagle
于 2010-3-23 11:00:00 发表
图上不去?
调整大小 平面图1.jpg
(43.11 K)
2010/3/23 11:04:55
只求自在
TOP
发送短消息
UID
72490
精华
0
查看公共资料
搜索主题
搜索帖子
songeagle
songeagle
组别
论坛博士后
生日
帖子
778
积分
788
性别
注册时间
2002-01-16
songeagle
论坛博士后
4
#
字体大小:
t
T
发表于
2010-03-23 15:23
|
只看楼主
顶顶,有经验的朋友请指教啊
只求自在
TOP
上一主题
|
下一主题
返回列表
高级编辑器
B
Color
Image
Link
Quote
Code
Smilies
默认表情
你需要登录后才可以发帖
登录
|
注册
发表回复
查看背景广告
隐藏
发新主题
发烧专区
HiFi乐趣
音乐唱片
器材用家专区
在线试听
交易论坛
硬件交易
软件交易
浏览过的版块
硬件交易
音乐唱片
TOP
设置头像
个人资料
更改密码
用户组
收藏夹
积分