帐号
注册
密码
登录
关闭
安全选项
找回密码
记住我
我的中心
登录或注册新用户,开通自己的个人中心
HIFI168首页
快速搜索
帖子标题
作者
版块
发烧论坛
»
发烧专区
»
HiFi乐趣
»
房间位置不对称 请教如何摆放音箱
发烧专区
HiFi乐趣
音乐唱片
器材用家专区
在线试听
交易论坛
硬件交易
软件交易
返回列表
1
2
下一页
查看:
5608
|
回复:
10
房间位置不对称 请教如何摆放音箱
[复制链接]
查看:
5608
|
回复:
10
发送短消息
UID
66859
精华
0
查看公共资料
搜索主题
搜索帖子
无敌毛毛虫
无敌毛毛虫
组别
论坛发烧友
生日
19720110
帖子
19
积分
19
性别
注册时间
2005-04-26
无敌毛毛虫
论坛发烧友
1
#
字体大小:
t
T
发表于
2012-03-19 21:58
|
只看楼主
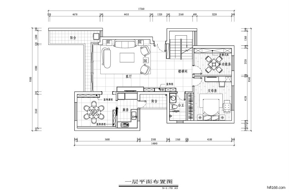
客厅长9.5米 宽5米 部分位置挑高5.8米
电视墙基本设置在这个位置 由于旁边有个餐厅门 所以显得不太对称
环绕线和HDMI刚刚埋好了 装修还未完成
大HIFI系统预计会是天朗的贵族系列大箱子 AV系统待定 如果能用天朗做主箱就最好
但是摆放位置的问题一直让我头痛 我现在已经尽量让电视墙拉宽 尽量靠近阳台一端
0111.jpg
(, 下载次数:0)
jpg
(2012/3/19 21:58:12 上传)
分享
转发
身居在闹事,耳无车马喧!
TOP
发送短消息
UID
95881
精华
2
查看公共资料
搜索主题
搜索帖子
细钊
细钊
组别
论坛博士后
生日
帖子
1072
积分
1084
性别
注册时间
2006-02-11
细钊
论坛博士后
2
#
字体大小:
t
T
发表于
2012-03-19 22:48
|
只看该用户
绝对是令人羡慕妒忌恨的住宅!
也绝对是音响发烧友的伤心欲绝地!!
如果一定只能在客厅摆放的话,真心实意的说一句:算了吧!
如果真的想好好的玩音响,在二楼另外找个房间罢了。
TOP
发送短消息
UID
217275
精华
0
查看公共资料
搜索主题
搜索帖子
砖家
组别
论坛博士后
生日
帖子
875
积分
875
性别
注册时间
2011-12-14
砖家
论坛博士后
3
#
字体大小:
t
T
发表于
2012-03-19 22:49
|
只看该用户
没法搞,能响就成
TOP
发送短消息
UID
66859
精华
0
查看公共资料
搜索主题
搜索帖子
无敌毛毛虫
无敌毛毛虫
组别
论坛发烧友
生日
19720110
帖子
19
积分
19
性别
注册时间
2005-04-26
无敌毛毛虫
论坛发烧友
4
#
字体大小:
t
T
发表于
2012-03-19 22:56
|
只看楼主
好惨 好惨
由于房子是中空设计 二楼只有一个主人房 一个儿童房 还有一个10来平的小书房
身居在闹事,耳无车马喧!
TOP
发送短消息
UID
220697
精华
1
查看公共资料
搜索主题
搜索帖子
强悍制箱
我的DIY四分频音箱
组别
禁止 IP
生日
帖子
1436
积分
1443
性别
注册时间
2012-01-16
强悍制箱
禁止 IP
5
#
字体大小:
t
T
发表于
2012-03-20 05:45
|
只看该用户
该用户帖子内容已被屏蔽
知识就是力量,科学技术就是生产力,把数学物理学科应用到制箱方法中,将她们的作用发挥到极致
TOP
发送短消息
UID
89334
精华
18
查看公共资料
搜索主题
搜索帖子
jacky70
jacky70
组别
论坛博士后
生日
19720110
帖子
5736
积分
8021
性别
注册时间
2004-10-18
jacky70
论坛博士后
6
#
字体大小:
t
T
发表于
2012-03-20 05:59
|
只看该用户
擺在長沙發對面,喇叭線走牆。
TOP
发送短消息
UID
210944
精华
0
查看公共资料
搜索主题
搜索帖子
ycz
组别
论坛博士后
生日
帖子
463
积分
578
性别
注册时间
2011-10-18
ycz
论坛博士后
7
#
字体大小:
t
T
发表于
2012-03-20 08:39
|
只看该用户
如果餐厅门靠阳台门边开这样就差不多了。
TOP
发送短消息
UID
214590
精华
0
查看公共资料
搜索主题
搜索帖子
岩茶hifi
组别
论坛博士后
生日
帖子
336
积分
821
性别
注册时间
2011-11-19
岩茶hifi
论坛博士后
8
#
字体大小:
t
T
发表于
2012-03-20 12:06
|
只看该用户
我建议把客厅重新装修,把现有阳台落地门窗改后到阳台护拦边加深客厅,可在原阳台处放沙发或电视音响,大门入囗处做装饰墙或做电视墙柜,这就可变成视听室了,效果比现在提升N个当次
TOP
发送短消息
UID
67484
精华
2
查看公共资料
搜索主题
搜索帖子
NHJJHCH
NHJJHCH
组别
论坛博士后
生日
帖子
976
积分
2091
性别
注册时间
2005-07-23
NHJJHCH
论坛博士后
9
#
字体大小:
t
T
发表于
2012-03-20 12:53
|
只看该用户
把现有阳台落地门窗改后到阳台护拦边加深客厅,沙发顺时针转九十度,背靠楼梯间方向!
音箱摆位离后墙1.5-2米!
NHJJHCH 最后编辑于 2012-03-20 12:55:16
TOP
发送短消息
UID
66859
精华
0
查看公共资料
搜索主题
搜索帖子
无敌毛毛虫
无敌毛毛虫
组别
论坛发烧友
生日
19720110
帖子
19
积分
19
性别
注册时间
2005-04-26
无敌毛毛虫
论坛发烧友
10
#
字体大小:
t
T
发表于
2012-03-20 20:53
|
只看楼主
回复 7# ycz 的帖子
这边这小段墙是承重的 不能改
身居在闹事,耳无车马喧!
TOP
上一主题
|
下一主题
返回列表
1
2
下一页
高级编辑器
B
Color
Image
Link
Quote
Code
Smilies
默认表情
你需要登录后才可以发帖
登录
|
注册
发表回复
查看背景广告
隐藏
发新主题
发烧专区
HiFi乐趣
音乐唱片
器材用家专区
在线试听
交易论坛
硬件交易
软件交易
浏览过的版块
音乐唱片
硬件交易
器材用家专区
软件交易
TOP
设置头像
个人资料
更改密码
用户组
收藏夹
积分