帐号
注册
密码
登录
关闭
安全选项
找回密码
记住我
我的中心
登录或注册新用户,开通自己的个人中心
HIFI168首页
快速搜索
帖子标题
作者
版块
发烧论坛
»
发烧专区
»
HiFi乐趣
»
紧急求问,关于房间尺寸问题~~!
发烧专区
HiFi乐趣
音乐唱片
器材用家专区
在线试听
交易论坛
硬件交易
软件交易
返回列表
查看:
3241
|
回复:
6
紧急求问,关于房间尺寸问题~~!
[复制链接]
查看:
3241
|
回复:
6
发送短消息
UID
89882
精华
0
查看公共资料
搜索主题
搜索帖子
bzy83
bzy83
组别
论坛学士
生日
19720110
帖子
45
积分
60
性别
注册时间
2004-11-16
bzy83
论坛学士
1
#
字体大小:
t
T
发表于
2012-11-18 17:53
|
只看楼主
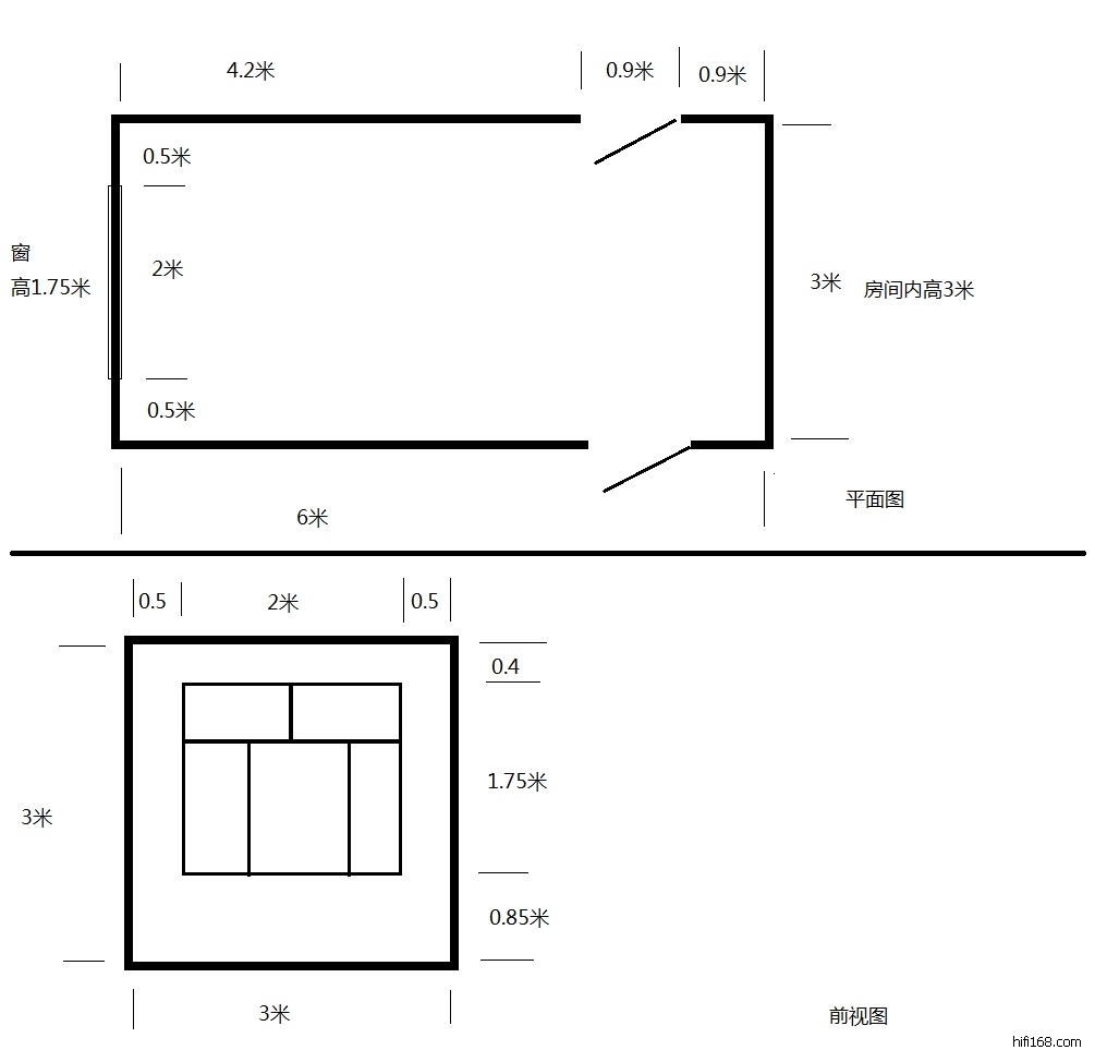
公司装修办公楼,能腾出个房间我想做成视听室,想问一下尺寸合不合适~
房间长6米宽3米高3米,四面白墙平顶。前边有窗,见图。
目前用的器材是 唯美2号 钢琴漆 功放是 天逸ad3d 音源是台电脑
上边的器材现在一直放在家里客厅,可是家人嫌吵,客厅环境也不行,几乎没有声场。
现在想如果这间房间可以的话就搬过来在公司听。将来想再增加一套5.1的影院系统顺便看看电影
想问一下这个房间是否合适用来听音乐看电影?
如果房顶和墙面需要处理的话怎样处理比较好?
多谢各位~~!
房间图.jpg
(, 下载次数:1)
jpg
(2012/11/18 17:53:23 上传)
分享
转发
TOP
发送短消息
UID
89882
精华
0
查看公共资料
搜索主题
搜索帖子
bzy83
bzy83
组别
论坛学士
生日
19720110
帖子
45
积分
60
性别
注册时间
2004-11-16
bzy83
论坛学士
2
#
字体大小:
t
T
发表于
2012-11-19 10:00
|
只看楼主
没人明白么?
TOP
发送短消息
UID
177130
精华
4
查看公共资料
搜索主题
搜索帖子
s1.4
组别
论坛博士
生日
帖子
409
积分
438
性别
注册时间
2010-12-10
s1.4
论坛博士
3
#
字体大小:
t
T
发表于
2012-11-19 13:02
|
只看该用户
长度可以,宽度最好4米左右,3米太窄了哦!
》》》因为爱生活*所以爱音乐《《《
TOP
发送短消息
UID
130523
精华
2
查看公共资料
搜索主题
搜索帖子
远去的村庄
组别
论坛博士后
生日
帖子
2264
积分
2288
性别
注册时间
2008-12-14
远去的村庄
论坛博士后
4
#
字体大小:
t
T
发表于
2012-11-19 13:23
|
只看该用户
有这么好的空间听音乐很不错罗!工业上的黄金比例是:1:1.618,也就是说宽是长的0.618,高是宽的0.618,好象是这样,不知有没有记错.
淘宝网店:http://shop71227468.taobao.com/
发烧同好交流群号:211352456
TOP
发送短消息
UID
80383
精华
4
查看公共资料
搜索主题
搜索帖子
mgw
冷咖啡
组别
论坛博士后
生日
帖子
515
积分
574
性别
注册时间
2005-03-10
mgw
论坛博士后
5
#
字体大小:
t
T
发表于
2012-11-19 13:26
|
只看该用户
长*宽*高成整数比例绝对出不了好声。
TOP
发送短消息
UID
218575
精华
0
查看公共资料
搜索主题
搜索帖子
金音符audio
深喉
组别
论坛博士后
生日
帖子
616
积分
661
性别
注册时间
2011-12-26
金音符audio
论坛博士后
6
#
字体大小:
t
T
发表于
2012-11-19 14:35
|
只看该用户
回复 1# bzy83 的帖子
这个聆听空间非常不错,若是独立聆听空间更是绝佳的;聆听空间宁长勿短,切忌:接近正方形的聆听空间。关键要处理正面窗口,尽量用石膏板做两扇门,活动的、走导轨。内部所有的吸音或扩散板切忌给固定,以便声音微调。
音乐无限
TOP
发送短消息
UID
237184
精华
0
查看公共资料
搜索主题
搜索帖子
无住生其心
组别
论坛发烧友
生日
帖子
14
积分
14
性别
注册时间
2012-07-01
无住生其心
论坛发烧友
7
#
字体大小:
t
T
发表于
2012-11-19 15:32
|
只看该用户
理论上是对的,但还是要把音箱摆上听听在反复调整
TOP
上一主题
|
下一主题
返回列表
高级编辑器
B
Color
Image
Link
Quote
Code
Smilies
默认表情
你需要登录后才可以发帖
登录
|
注册
发表回复
查看背景广告
隐藏
发新主题
发烧专区
HiFi乐趣
音乐唱片
器材用家专区
在线试听
交易论坛
硬件交易
软件交易
浏览过的版块
音乐唱片
硬件交易
器材用家专区
TOP
设置头像
个人资料
更改密码
用户组
收藏夹
积分