帐号
注册
密码
登录
关闭
安全选项
找回密码
记住我
我的中心
登录或注册新用户,开通自己的个人中心
HIFI168首页
快速搜索
帖子标题
作者
版块
发烧论坛
»
发烧专区
»
HiFi乐趣
»
2010音响听音室讨论
发烧专区
HiFi乐趣
音乐唱片
器材用家专区
在线试听
交易论坛
硬件交易
软件交易
返回列表
查看:
4092
|
回复:
9
2010音响听音室讨论
[复制链接]
查看:
4092
|
回复:
9
发送短消息
UID
124898
精华
0
查看公共资料
搜索主题
搜索帖子
西部电子
组别
论坛学士
生日
帖子
85
积分
85
性别
注册时间
2008-07-02
西部电子
论坛学士
1
#
字体大小:
t
T
发表于
2010-02-02 07:31
|
只看楼主
只做听音乐用,毛胚房高度1.95米,长度3.75米,宽度3.45米,请大家提出装修意见。准备放置的系统:音箱贵族50签名版+功放300b分体单端胆机
yx.jpg
(112.04 K)
2010/2/2 7:31:17
西部电子 最后编辑于 2010-02-02 07:34:36
分享
转发
TOP
发送短消息
UID
108063
精华
1
查看公共资料
搜索主题
搜索帖子
云山樵
组别
论坛学士
生日
帖子
126
积分
133
性别
注册时间
2007-05-11
云山樵
论坛学士
2
#
字体大小:
t
T
发表于
2010-02-02 10:34
|
只看该用户
1.95的高度矮了点。
白云堆里拾青槐 惯入深林鸟不猜 无意带将花数朵 竟挑蝴蝶下山来
TOP
发送短消息
UID
134148
精华
2
查看公共资料
搜索主题
搜索帖子
hanshanxue
组别
论坛学士
生日
帖子
120
积分
134
性别
注册时间
2009-03-18
hanshanxue
论坛学士
3
#
字体大小:
t
T
发表于
2010-02-02 11:48
|
只看该用户
装修的事情我不懂,给你篇文章参考下
http://bbs.dalaba.me/viewthread.php?tid=354&extra=page%3D1
hifi音响
TOP
发送短消息
UID
124898
精华
0
查看公共资料
搜索主题
搜索帖子
西部电子
组别
论坛学士
生日
帖子
85
积分
85
性别
注册时间
2008-07-02
西部电子
论坛学士
4
#
字体大小:
t
T
发表于
2010-02-04 06:41
|
只看楼主
感觉结构跟这间房差不多,参考一下
为取得左右视觉平衡,拟在右侧墙壁做一副无门书架,里面摆满了书
20.jpg
(74.30 K)
2010/2/4 6:40:37
TOP
发送短消息
UID
74519
精华
8
查看公共资料
搜索主题
搜索帖子
wvwvwv
wvwvwv
组别
论坛博士后
生日
19720110
帖子
965
积分
1355
性别
注册时间
2002-09-21
wvwvwv
论坛博士后
5
#
字体大小:
t
T
发表于
2010-02-04 11:05
|
只看该用户
支持楼主讨论,我也有一间类似的房间,铺过复合地板以后高度2.05~2.10米,长度4.2米,宽度3.1米,12平米左右。可以做独立听音室。但由于房间是半地下室,有半高窗户,房间高度有点不足不知如何处理.
TOP
发送短消息
UID
124898
精华
0
查看公共资料
搜索主题
搜索帖子
西部电子
组别
论坛学士
生日
帖子
85
积分
85
性别
注册时间
2008-07-02
西部电子
论坛学士
6
#
字体大小:
t
T
发表于
2010-03-09 06:49
|
只看楼主
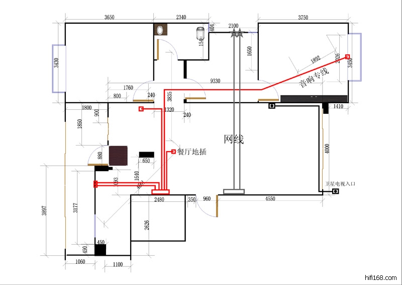
设计图来了
选用什么牌子的音响线呢,打算用2.5平的
yx.jpg
(102.57 K)
2010/3/9 6:48:54
TOP
发送短消息
UID
128363
精华
6
查看公共资料
搜索主题
搜索帖子
lovehiend
组别
论坛博士后
生日
帖子
659
积分
761
性别
注册时间
2008-10-20
lovehiend
论坛博士后
7
#
字体大小:
t
T
发表于
2010-03-09 09:22
|
只看该用户
本人也有间地下室,年后刚开工。宽3.85MX长5.59MX高2.78M
1)拉两路6平方专线,3个墙插(CES con IIIX2个 , Wattgate381X1个)
2)侧墙及顶部吸音棉加龙骨再铺防潮石高板,最后铺海洁布刷涂料。
3)前墙墙面海洁布刷涂料,地面地砖。
4)顶部中间区域60X60扩散板X12块
5)前墙两侧角低频陷井,做2个斜面内填吸音棉。(三角形为30CMX50CM)
完成以上工程后,根据现场听音情况再准备在两侧墙做调整。
希望能给楼主点借荐,也希望高手支招,呵呵!
TOP
发送短消息
UID
75558
精华
0
查看公共资料
搜索主题
搜索帖子
白云蓝天
白云蓝天
组别
论坛博士后
生日
1972-01-10
帖子
1609
积分
1844
性别
注册时间
2003-01-02
白云蓝天
论坛博士后
8
#
字体大小:
t
T
发表于
2010-03-09 10:00
|
只看该用户
2.5平?太小了吧。
TOP
发送短消息
UID
124898
精华
0
查看公共资料
搜索主题
搜索帖子
西部电子
组别
论坛学士
生日
帖子
85
积分
85
性别
注册时间
2008-07-02
西部电子
论坛学士
9
#
字体大小:
t
T
发表于
2010-03-11 20:24
|
只看楼主
本地能买到的有超时空方芯铜
不知道哪位烧有这样用过
TOP
发送短消息
UID
201356
精华
0
查看公共资料
搜索主题
搜索帖子
rmh2008
组别
论坛发烧友
生日
帖子
6
积分
6
性别
注册时间
2011-07-08
rmh2008
论坛发烧友
10
#
字体大小:
t
T
发表于
2011-09-09 18:08
|
只看该用户
准备装个16平米听音室请指教!
请各位资深烧友指点 :房间长6.2米,宽2.7米,高3.3米,是二楼。木屋顶已石膏吊顶,水泥地板,墙为实心砖墙,仿瓷涂料表面处理,宽边一边有一个窗户(非落地窗),另一宽边有个小窗(和门同高)和门,装修应注意哪些要点?请大家帮忙指点指点,小弟感谢不尽!
TOP
上一主题
|
下一主题
返回列表
高级编辑器
B
Color
Image
Link
Quote
Code
Smilies
默认表情
你需要登录后才可以发帖
登录
|
注册
发表回复
查看背景广告
隐藏
发新主题
发烧专区
HiFi乐趣
音乐唱片
器材用家专区
在线试听
交易论坛
硬件交易
软件交易
浏览过的版块
硬件交易
音乐唱片
器材用家专区
软件交易
TOP
设置头像
个人资料
更改密码
用户组
收藏夹
积分