发烧论坛

注册

 

返回列表 «1011121314151617 / 17
发新话题 回复该主题

廉价方案处理听音室感兴趣的朋友请进 [复制链接]

查看: 74687|回复: 168
121#

加入了固化的的玻璃纤维板可增强声阻抗提高吸收效率,是薄板共振吸收的重要改良,但共振频率f0基本上仍然取决于薄板的尺寸、重量、弹性系数和板后空气层的厚度,并且和框架构造及薄板安装方法有关,这些还是很难施工操作控制的。它对中高频会产生反向散射,因此“音染”特征突出。

其实亥姆霍兹陷阱穿孔率还是好控制的,中国在1964年首次提出“微穿孔板”的吸声结构。因为把穿孔的孔径缩小到毫米以下,可以增加孔本身的声阻,而不必外加多孔材料就能得到满意的吸声系数。为了展宽频率范围和提高吸声效果,还可以采用不同穿孔率和孔径的多层结构。中国科学院声学研究所研究了微穿孔板的吸声系数等,证明这种结构的效果很好。

而我们由于空间不足和要求简单的限制,通常就采用单层结构了,为了展宽频率范围,穿孔采取整体均匀而局部不均匀的设计,这样的设计吸收效率不变,但改良并展宽了频率范围。个人打穿孔做到孔径缩小到毫米以下也很困难,孔径较大时(如5mm以上)声阻不足,所以需要填充多孔材料(吸音棉)来得到满意的吸声系数。个人可能是比较熟悉这样的方法了,所以认为设计、施工操作、频率范围控制等,都是比较具有稳定一致性和操作方便性的。

非常感谢yamakasi兄提供的资料和参与讨论,希望看到yamakasi兄更多的个人意见和见解。听音环境处理没有一成不变的模式,环境不同就应该做出相应的变化调整,多种原理同时采用的情况是常常发生的。
对于音响器材来说:绝对“理想的、忠实地还原”是没有的,也是做不到的;我们只是在朝着“音响器材各自应该具备的基本性能”方面尽量努力,使其各尽其责而已。目的就是尽可能地做到“理想的、忠实地还原”。
TOP
122#

及时雨啊,两面玻璃,终于找到理论基础了,请松香味老师指点一下

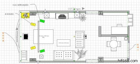
松香味老师,我的听音室如下图,先说说情况:
1、原音箱摆长边时左右侧墙都用墙衣做过吸音处理,效果不错。
2、现因上投影,打算将音箱摆短边。调整到浩歌527摆法(绿色位置)得到基本平衡的声音。但低频仍显浑浊。高频比较硬。
3、音箱后墙是阳台封闭出来的,因此背墙是4.8*2.8m之曲面玻璃。反射太厉害,低频也不好。使用厚窗帘能解决一些问题,但低频还是不好搞。
4、我希望最佳的结果是不拉窗帘的情况下,音箱退到黄位,可得到较佳的效果,低频清晰、高频不冲。
不知道您所说的方法能不能满足,又应该如何操作,先谢谢了。
TOP
123#

补图

补图
TOP
124#

补图

补图
听音室1.jpg (, 下载次数:0)

jpg(2010/2/7 0:49:29 上传)

听音室1.jpg

TOP
125#

再上个实景图

调得头都晕了,呵呵
SDIM2895.jpg (, 下载次数:0)

jpg(2010/2/7 0:52:45 上传)

SDIM2895.jpg

TOP
126#

原帖由 wltdd 于 2010-2-7 0:45:00 发表
松香味老师,我的听音室如下图,先说说情况:
1、原音箱摆长边时左右侧墙都用墙衣做过吸音处理,效果不错。
2、现因上投影,打算将音箱摆短边。调整到浩歌527摆法(绿色位置)得到基本平衡的声音。但低频仍显浑浊。高频比较硬。
3、音箱后墙是阳台封闭出来的,因此背墙是4.8*2.8m之曲面玻璃。反射太厉害,低频也不好。使用厚窗帘能解决一些问题,但低频还是不好搞。
4、我希望最佳的结果是不拉窗帘的情

从平面图和图片上看,你的环境是可以获得好效果的,但是如果采用“卦限式”处理,保证三个镜面的平滑是卦限消声室中最重要的条件之一。你的环境已经经过装修“定案”,重新处理投资较大,不知道你有什么打算?4.8*2.8m之曲面玻璃刚性较大,不易产生共振吸收低频,且有声聚焦反射,头痛哦!想明白你的决心和最终要求。
对于音响器材来说:绝对“理想的、忠实地还原”是没有的,也是做不到的;我们只是在朝着“音响器材各自应该具备的基本性能”方面尽量努力,使其各尽其责而已。目的就是尽可能地做到“理想的、忠实地还原”。
TOP
127#

没想到松香味老师这么晚在线。
最终要求:音箱最好能退到离窗1.7米(目前是2.6米),不拉窗帘下也有平衡饱满的听感,年后会更换一对导向孔朝前的落地箱。

本来我有两个打算
1、把原阳台吊下40cm用穿孔板来试试能不能理顺低频。吊顶后2角可加装泡沫扩散板。
2、在那只公仔狗的位置竖一片1米左右宽,2.4米高的木制余数扩散板,室内其他位置不是太夸张地情况下加一些泡沫扩散板调整。看能不能不拉窗帘的情况下解决反射的问题。
3、如果这些还不够,再在室内顶部装聚酯纤维吸音板,空间近40平米,怕吸音太厉害,准备2块2块的试。
当然可能都是乱来了。
决心在确保美观的情况下还是大的。局限是餐厅不能隔断。
让您费心了:)
TOP
128#

为方便诊断,描述一下现在的听感
据后窗2.6m时拉满窗帘的听感是:
左右音箱必须摆得很对称。三段还算平衡但混浊。动态不大时听定位还不错,音场在喇叭后,前后层次比长边摆放时分明,音量可以开到11点,古典可以播放罗西尼。再大编制就失去层次了。
但音箱往后退则退多一点乱多一点。退到1.7米处(我期望的距离),音量开到11点时,音场从音箱外围被挤前比音箱水平线出来1米多,中间反而后缩1米左右。
据后窗2.6m时拉开窗帘的听感是:
定位基本还能保持,但也明显突前,音质通过对解码调整后虽不算刺耳,但很硬实。音场后排低频很乱,齐奏失去形体。大提琴的独奏则只有一点模糊的轮廓。
TOP
129#

曲面玻璃能不能改成平板玻璃?
对于音响器材来说:绝对“理想的、忠实地还原”是没有的,也是做不到的;我们只是在朝着“音响器材各自应该具备的基本性能”方面尽量努力,使其各尽其责而已。目的就是尽可能地做到“理想的、忠实地还原”。
TOP
130#

啊,这个要问问,整栋楼都是这么弄的.
TOP
发新话题 回复该主题